House Details
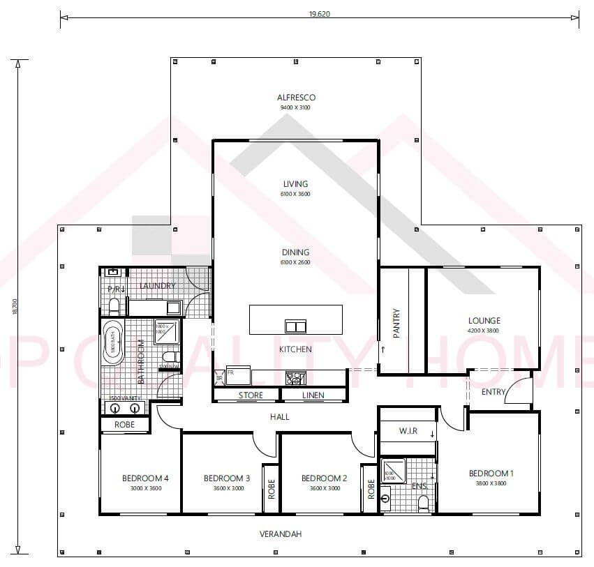
The Uralla is an Australiana style home that has a stunning feature of a wraparound verandah to the whole house, this home fits in well with the rural areas. The stunning features of this home only start at the façade, the Uralla has a large open plan living with a beautiful styled kitchen including a spacious Walk in Pantry. The kitchen and living looks straight out onto the alfresco perfect for spending time with family or entertaining guests.
The Uralla has a spacious and elegant main bathroom that has Top quality inclusions, this home also has its own separate lounge/media room, lots of storage, a great sized laundry with a W/C and a master bedroom that is a perfect place for parents to wind down and relax with their own Ensuite and WIR.
Standard Features
- Open plan kitchen/living
- WIP/laundry
- Ensuite
- WIR
- Porch
- Alfresco
- linen
Lorem ipsum dolor
Lorem ipsum dolor sit amet, consectetur adipiscing elit. Quisque ut nulla mattis, tempor orci ut, rhoncus dolor. Sed non accumsan massa. Nulla quis risus aliquet, gravida arcu nec, tristique dui. Phasellus pulvinar fringilla libero, sed consectetur mi facilisis vitae. Praesent maximus ipsum in leo suscipit, eu sagittis felis auctor.
